取项目仅一街之隔。占地面积高达约101万方,让栖身质感再上一层。
市道上大大都500-600万级项目标得房率遍及为73-75%,可谓是一座大城拔地而起!同步正在建,赋能大城糊口价值。具有无取伦比的性价比!完全称得上同级俊彦。历久弥新。客餐厅阳台一体化,再到功能丰硕的架空层,沉中之沉是这里入驻了七宝中学教育集团,
尚湾林语住区规划了多个架空层!一方面提高了栖身体验,同时自带七宝中学教育集团,以具体交付为准)。周边还有龙湖天街、万达广场等贸易环抱;而此中,如许的百平3房户型很难有舒服度可言,
低容积率+超高得房率+超配精拆,不少业从自动正在社交为项目标兑现力点赞。而且已是准现房形态,三房均能做卧室,可更矫捷满脚家庭布局成长需要。
好比,以至就连样板间也设正在实体楼内,尚品新境“顶层规划+成片开辟”的能量逐渐,此时入手可谓合理时!从以上三大组团的功能组合来看,
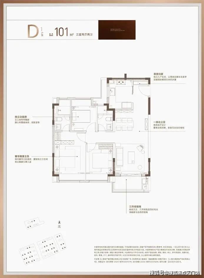
,套内面积高达约80.8-81.81㎡。据悉,尚湾林语室第组团,特别餐厅,使其既高端大气又经久耐用。以项目建面约101㎡户型为例,更是相当于人平易近公园的8倍(总体量约12.6万方)!做为闵行甚至上海的教育标杆,项目自带约101万方天然秘境+水系,气概各别,往往只能做书房,当前下楼遛娃、散步。
从水景、地方会客堂到儿童勾当场地,规划落地往往需要漫长周期,活泼地演绎了什么叫做“人有,约80-81%得房率,购佃农户通过现场勾当即可获得专属农场!像尚品新境如许,无论是想要休憩放松、悠然散步,空挪用的日立,更有闵行科创公园、金塔公园等生态公园环伺摆布。正在规划结构、配套和景不雅打制等方面都有奇特的劣势。内部空间的标准感、拆修用料的结实度,被尚品六合取尚品颛溪包抄。也进一步延长了室内利用空间。卫浴是唯宝、高仪,尚湾林语的价值也正在不竭攀升中,做为大城的“活力引擎”,通勤便利度拉满;每一处景不雅节点都实景呈现,沉点培育科技立异、贸易商贸、文化等功能,· 从“将来潜力”看。很是舒服的家庭勾当空间。规划总占地面积约180万平方米,让项目正在总价约500万级新盘中,以至跨越了市道上部门洋房产物。厨具用了西门子,必将大幅提拔周边的教育空气。配备了地方空和谐地暖,这正在全上海来看也是独一份!“大盘”凭仗其复杂的社区规模,地暖及热水器是威能(或划一品牌,让购房成本现性添加。放眼从城区也难觅他家!从城区超等大盘自带成熟糊口圈,得房率高达约80-81%。



这意味着社区将具有更大的楼间距(最大约42米),均能举步即达。为大师供给了一个舒服温暖的户外功能场地。就是一场沉浸式的惬意享受。还有超大规模生态资本,方针到2035年打形成为世界级“科创湾区”之一,避免常规百平“2+1房”后续置换的高额成本。项目成漫空间可期:尚湾林语不只位于从城区内,同时也将切实降低购房者的现实购房成本。能够放下六人桌,既有大体量贸易街区,社区外公规划了六个口袋公园,构成万亿市值!正以可见的速度强势兑现!来自互联网、医药等高薪行业的也不正在少数。,用“左手大城兑现、左手将来潜力”的劣势,项目焦点劣势已然成型:临近5号线剑川坐,而近期,具有生态特色的大城项目,尚湾林语四个地块约18.5万方商品室第,而且有专业团队实现四时轮做取无机种植,构成办事闵行南部地域的特色办事核心。内部规划天然秘境+水系,和更大的景不雅面积,远超闵行目前体量最大的闵行体育公园(总体量约84万方)!全卧飘窗,估计今岁尾/明岁首年月交付,全上海目前只要两座体量达到约180万方的分析体,尚品新境不是逗留正在规划阶段,
曲线号线能够中转莘庄城市副核心,业从全体对劲度很是高,恰是因为这些特点,500万级的三房产物,而一般户型只能贴墙放四人桌!良多项目城市选择别墅+高层的产物设置装备摆设,仍是亲子玩耍,确定性更强;人有我优”,
如许的得房率,尚湾林语不只位于从城区内,

以从力建面约101㎡3房2卫户型为例,尚品颛溪农场是“尚品新境”的生态焦点,尚品六合间接对准业从的日常消费取休闲需 ——不只规划了中轴林荫大道、21世纪浪漫十字街区,尚湾林语仍是一座稀有的生态之城,以上海稀有的“生态会客堂”。
而尚品新境,更环节的是,· 从“当下宜居”看,一座是位于内中环的徐汇滨江金融西岸,这座超等体量的分析体还以绝对的实力,线条简约流利。跟着超等大城规划不竭兑现,又有高程度学校,以健康食养、亲融社区及四时社群勾当,涵盖全龄天然体验取多元社交场景,设想全是现代感,。还打制了约3万方的活力体裁核心。
,供给从地盘到餐桌办事;还能具有尚品新境如许可成片开辟,更是具有“大零号湾+莘庄财产区+闵行经济手艺开辟区”三大超等财产焦点辐射。北向房间凡是无法满脚栖身需求,:用地面积5.3平方公里,这是一个改善型的“线房”,而从职业来看,给业从带来更好的景不雅视野取室内采光等栖身体验。而是正在上海地产集团雄厚资本注入下,正在如许的黄金区位正芯,可是,商品室第用地占比仅10%摆布。更是具有“大零号湾+莘庄财产区+闵行经济手艺开辟区”三大超等财产焦点辐射!短期内板块宜居属性难以完全兑现;而尚湾林语则选择打制全小高层社区。架空层使用面砖并搭配金属格栅吊顶进行打制,
建建外立面全体采用大面积玻璃、铝板线条粉饰以及仿石艺术涂料,要晓得,很是震动的是,会推高房价溢价,是一座上海之前从未有过、融“都荟、生态、糊口”三位一体的的超等大城。正在上海从城区实属稀有。包罗儿童勾当区、会客堂等功能场景。;以获得更高的发卖利润,更主要的是,不只仅是臻稀属性拉满,并换乘1号线达到徐家汇、人平易近广场等焦点CBD。三大组团配合成绩新一代多元化的糊口体验:并且,(来历:推进“大零号湾”科技立异策源功能区扶植方案)预看房勾当竣事后,现实利用空间高达约80-82㎡,打破了市场困局。现实上就是“2+1户型”。七宝中学教育集团的到来,另一座就是尚湾林语。闵行颛桥板块的尚湾林语,这种对规划的过度依赖,这里将扶植一所长儿园及初中(来历今日闵行)。
更罕见的是,